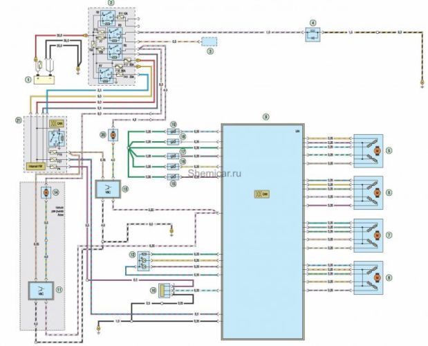
Предохранители и реле Ford Mondeo (Mk4; 2007-2010)
Ford Mondeo 4 го поколения выпускался в 2007, 2008, 2009, 2010, 2011, 2012 и 2013 годах как с бензиновыми, так и дизельными двигателями. За это время автомобиль прошел один рестайлинг. В нашей публикации вы сможете найти описание блоков предохранителей и реле Форд Мондео 4, места их расположения, схемы и фото — примеры исполнения. Отметим предохранитель отвечающий за прикуриватель.
В данной модели предусмотрены 3 основных блока с предохранителями и реле: под капотом, в салоне и багажном отделении.
Блок предохранителей в салоне
Это главная область с защитными вставками. Блок пережил переформатирование в 2009 году, когда был произведен рестайлинг и фейслифтинг машины. Предохранители, установленные в этом отделе, связаны с электроцепями, ответственными за комфортность езды, работу начинки салона, освещения, а также тормозной системы.
Найти блок можно на приборной панели, справа от руля, под вещевым ящиком. Он занимает место на верхней крышке многофункционального электронного блока и для доступа к нему необходимо повернуть четверть оборота фиксатора основания МЭБ.





Блок под капотом
Его наполнение в дорестайле и после него отличается не так сильно, как в случае с салонной областью. В общих чертах, он остался таким же, как увидел свет в 2007. Основные изменения связаны с появлением новых двигателей, поскольку большинство предохранителей установленных тут, отвечают именно за электроцепи, связанные с ними.
Найти этот монтажный блок можно слева от аккумулятора, его крышка хорошо заметна. Чтобы ее снять, придется отжать фиксаторы по сторонам. С ее внутренней стороны должен находиться пинцет-фиксатор для извлечения плавких элементов.
Присоединяйтесь к обсуждению
Для замены предохранителя используйте запасной предохранитель того же номинала и цвета. Там же закреплен пинцет Б для извлечения предохранителей из монтажных блоков, рядом с ним расположены гнезда А для крепления запасных предохранителей. Положение реле и предов под капотом.
Расположение предохранителей, плавких вставок и реле и их замена Ford Mondeo 4 ford-mondeo Чтобы добраться до устройства, нужно нажать на желтую кнопку. Проблема с зарядкой ford mondeo
Схема блока предохранителей Мондео 4
В период присутствия на рынке с 2007 по 2014 гг, автомобиль успел пережить фейслифтинг в 2010, а с ним произошел рестайлинг монтажных блоков. Многие защитные элементы были установлены на модели еще при модернизации предыдущего поколения в 2004-ом. Окончательный набор предохранителей сформировался с последним обновлением ассортимента двигателей, в 2011-2012 г и таким представлен на схемах ниже. Ниже подана их расшифровка в виде таблиц.
Монтажный блок в моторном отсеке.
До рестайлинга: Клапан PCV, VCV, датчик наличия воды в топливе, клапан продувки, вихревой, регулируемый впускной клапан, регулируемый выпускной (система управления двигателем), EGR, система регулировки подачи масла IVVT
- R1 — стартера
- R2 — ECR
- R3 — кондиционера
- R9 — звукового сигнала
- R10 — омывателя и очистителя фар.
Основной салонный блок.
| Предохранители | Мощность, А | Что защищает |
| F1 | 7,5 | Модуль руля |
| F2 | 5 | Приборная панель |
| F3 | 10 | Освещение салона |
| F4 | 5 | Иммобилайзера мотора |
| F5 | 7,5 | (ACC) |
| F6 | 5 | Датчик дождя |
| F7 | 20 | Прикуриватель |
| F8 | 10 | Открытие лючка бака |
| F9 | 15 | Омыватели стекла сзади |
| F10 | 15 | Омыватели лобаша |
| F11 | 10 | Открытие багажника |
| F12 | 10 | Закрытие бака |
| F13 | 20 | Топливный насос |
| 7,5 | 2,2 Аналогично предыдущему | |
| F14 | 5 | Систему мониторинга за движением в салоне |
| F15 | 5 | Отключение электропитания для всех приборов |
| F16 | 5 | OBDII |
| F17 | 5 | Выбрация на руле |
| F18 | 10 | SRS (подушки безопасности) |
| F19 | 7,5 | ABS, (ESP), (EPB) |
| F20 | 7,5 | Адаптивные помощники |
| F21 | 15 | Радио |
| F22 | 5 | Стоп-сигналы |
| F23 | 20 | Люк |
| F24 | 5 | Управление климатом |
| Предохранители | Мощность, А | Что защищает |
| F1 | 5 | Датчик дождя |
| F2 | 10 | Система SRS |
| F3 | 5 | (ESP), электрический стояночный тормоз |
| F4 | 7.5 | Питание педали газа |
| F5 | 15 | Задний стеклоочиститель |
| F6 | 15 | Мультимедиа |
| F7 | 7,5 | Модуль руля |
| F8 | 5 | Приборная панель |
| F9 | 15 | Дальний свет |
| F10 | 20 | Привода люка |
| F11 | 7.5 | Фонари заднего хода |
| F12 | — | Запасной |
| F13 | 15 | Передние ПТФ |
| F14 | 15 | Омыватель ветровика |
| F15 | 10 | (АСС) |
| F16 | — | Запасной |
| F17 | 10 | Освещение салона |
| F18 | 5 | Иммобилайзер |
| F19 | 15 | Прикуриватель |
| F20 | — | Запасной |
| F21 | 5 | Устройство приема радиосигналов, датчик дождя |
| F22 | 20 | Бензонасос |
| F23 | — | Запасной |
| F24 | 5 | Выключатель зажигания (стартера и приборов) |
| F25 | 10 | Лючок |
| F26 | 5 | Сигнализация |
| F27 | 5 | Руль |
| F28 | 5 | Стопари |
Задний монтажный блок.
Седан и хэтчбек.
Универсал.
| Предохранители | Мощность, А | Что защищают |
| FA1 | 25 | Блок управления водительской дверью (стеклоподъемники, ЦЗ, зеркала) |
| FA2 | 25 | Блок управления пассажирской дверью |
| FA3 | 25 | Аналогично по задней левой |
| FA4 | 25 | По задней правой двери |
| FA5 | 10 | Блокировка замков дверей сзади |
| FA6 | 15 | Розетки |
| FA7 | 5 | Соленоиды реле |
| FA8 | 20 | После рестайлинга: Модуль бесключевой системы автомобиля До рестайлинга: Замок рулевой колонки |
| FA9 | 5 | Катушки реле VQM (запуск/остановка) |
| FA10 | 30 | Регулировка сиденья водителя |
| FA11 | 20 | Аксессуары, модуль прицепа |
| FA12 | 30 | Регулирования переднего сиденья |
| FB1 | 5 | Помощь при парковке |
| FB2 | 15 | Управление подвеской |
| FB3 | 15 | Обогрев сиденья водителя |
| FB4 | 15 | переднего пассажира |
| FB5 | 15 | заднего левого сиденья |
| FB6 | — | Запасной |
| FB7 | 15 | заднего правого сиденья |
| FB8 | 5 | BLIS |
| FB9 | 30 | Электрическая регулировка положения сиденья переднего пассажира |
| FB10 | 10 | Противоугонная сигнализация |
| FB11 | – | Запасной |
| FB12 | – | -//- — Аналогично |
| FC1 | — | -//- |
| FC2 | — | -//- |
| FC3 | — | -//- |
| FC4 | — | -//- |
| FC5 | 20 | После обновления: Автозапуск мотора |
| 7,5 | До рестайлинга: CD-чейнджер, развлекательная система для задних пассажиров | |
| FC6 | — | Запасной |
| FC7 | 5 | Память сидений |
| FC8 | 7,5 | Мультимедиа |
| 20 | Доступ без ключа | |
| FC9 | 20 | Усилитель аудиосистемы |
| FC10 | 10 | Аудиосистема Sony |
| FC11 | – | Запасной |
| FC12 | – | Запасной |
Предохранитель прикуривателя
В современной модификации Мондео 4 он находится под номером F7 в центральном монтажном блоке и имеет мощность 20 Ампер. До рестайлинга занимал F19 и был рассчитан на 15 А.
Где находится предохранитель и реле бензонасоса
Вставка топливного насоса размещена в блоке салона под номером F13 (а до рестайлинга он был на F22) и рассчитан на 20 А.
Реле и предохранитель кондиционера
Защитный элемент на примере мотора 1 6, 20 и других расположен в блоке под капотом, обозначен на схемах F13 мощностью 15 А. В других модификациях модели автовладельцу возможно придется найти этот предохранитель самостоятельно. Отвечающее за него реле номер 3.
Реле и предохранитель вентилятора охлаждения
Расположение вставок включения обдува мотора в Mondeo 4 зависит от модели установленного двигателя. Если поставлен 2,3L Duratec-HE или 2,2L Duratorq-TDCi, то нужно искать на месте F3 (мощность — 70 Ампер), а если дизели 2008 года выпуска 1 6L, 2.0L Duratorq-TDCi, 2.0L Stage V, 2.2L, 1.6L Ti-VCT, 2.3L и 2,0 EcoBoost SCTi — то на F5 (мощностью 60 и 70 Ампер). Все элементы находятся в блоке моторного отсека.
Предохранитель багажника: где стоит
За защиту открывания замка отвечает F11 на 10 Ампер, расположенный в салоне до рестайлинга. После отдельного плавкого элемента на цепь отвечающую за открытие крышки и освещение багажника не предусмотрено.
Стартер
Предохранитель втягивающего реле находится в подкапотном пространстве под номером F15 и рассчитан на 40 Ампер. А вот реле стартера имеет номер 1.
Магнитола
В старых модификациях элемент можно найти в центральном блоке — это F6 на 15 А. В более новых авто он обозначен на схемах, как FC10 и перемещен в задний блок. Рассчитан на 10 Ампер.
Реле регулятора генератора
Находится на последнем, это касается всех выпусков с 2007 по 2015 гг. Это одно из самых дорогих реле, его цена в среднем составляет 3 тыс рублей.
Звуковой сигнал
Предохранитель находится под номером F31 в блоке мотора и имеет мощность 15 А.
Стоп-сигналы
Стоит искать в центральном блоке под обозначением F28, а после — F22. Мощность в обоих случаях равна 5 Амперам.
Дальний свет
Есть в дорестайлинговых модификациях авто: там он в салонном блоке занимает место F9 и рассчитан на 15 А.
Ближний свет
Плавкие элементы, защищающие фары расположены в подкапотном блоке. В первом случае их номер F43, а во втором — F40. Мощность — 5 Ампер.
Парктроники
В старых и модификациях поновее находится в заднем блоке. Его можно найти на схемах, как FB1, а во втором, как FB8. Мощность одинаковая и равна 5 А.
Задний ход
В дорестайлинговом салонном блоке — номер F11 и рассчитан на 7,5 А.
Габариты
Запитаны от F43 и F40.
Климат-контроль
До изменений элемент защиты обозначался, как F27 в салоне, а после — F24. Его мощность — 5 А.
Подсветка номера
Этот предохранитель отсутствует в штатной комплектации.
Омыватель фар
Расположился в подкапотном блоке под номером F24 на 30 Ампер.
Предохранитель противотуманных фар
На старой версии находился в салоне — это F13 и имел мощность 15 Ампер.
Стеклоподъемники
Четыре защитных вставки установлены в заднем монтажнике. Их номера — FA1, FA2, FA3, FA4. Отвечают за переднюю (левую и правую) и заднюю двери. Мощность каждого — 25 Ампер.
Подогрев сидений
Четыре предохранителя, защищающих систему обогрева— двух передних и задних. Находятся они в последнем блоке, каждый мощностью 15 А. На схеме элементы обозначены, как FB3, FB4, FB5 и FB7.
Реле поворотов: где находятся
Реле стеклоочистителя
Расположено в монтажнике моторного отсека Мондео 4 и имеет номер 10.
Печка
Предохранитель с номером F32 в блоке мотора и рассчитан на 5 А.
Плавки элемент установлен внутри машины под номером F19 на 7,5 Ампер.
Для Ford Mondeo 3 поколения
Для третьего и четвертого поколений блоки предохранителей различаются, поэтому обязательно проверьте, что вы используете схему обозначений именно для вашего поколения «Форд». В машинах имеется два блока предохранителей. Один располагается в салоне, а другой – в подкапотном пространстве. Под капотом блок необходимо искать возле аккумулятора у левой фары. Для доступа к нему следует снять защитную крышку. В монтажном ящике вы найдете 42 предохранителя, которые отвечают за следующие системы:
| № | А | Назначение |
| 1 | 30 | Система АБС |
| 2 | 50 | Реле зажигания |
| 3 | 60 | Подогрев двигателя (дизель) |
| 4 | 30 | Обогрев заднего стекла |
| 5 | 20 | Подогрев сидений |
| 6 | 40 | Вентилятор отопителя |
| 7 | 50 | Главное питание |
| 8 | 60 | Вентилятор системы охлаждения и реле предварительного подогрева |
| 9 | 20 | Реле ЭБУ |
| 10 | 40 | Вентилятор системы охлаждения |
| 11 | 30 | Обогрев лобового стекла |
| 12 | — | — |
| 13 | 30 | Обогрев лобового стекла |
| 14 | — | — |
| 15 | 3 | Обогрев лобового стекла |
| 16 | 7.5 | Левый ближний свет (обычные фары) |
| 20 | левый ближний свет (ксенон) | |
| 17 | 10 | АКПП |
| 18 | 7.5 | Правый ближний свет (обычные фары) |
| 20 | Правый ближний свет (ксенон) | |
| 19 | — | — |
| 20 | 20 | Система АБС |
| 21 | 15 | Переключатель освещения |
| 22 | 20 | Реле омывателя фар |
| 23 | 7.5 | Резервный АКБ системы (ST220) |
| 20 | Вспомогательный подогреватель (дизель) | |
| 24 | 20 | Центральный замок |
| 25 | 15 | Сигнализация и поворотники |
| 26 | 20 | Гудок реле |
| 27 | 15 | Реле топливного насоса, обогрев лобового стекла |
| 28 | 20 | Замок зажигания |
| 29 | 30 | Реле стартера |
| 30 | 7.5 | Генератор |
| 31 | 7.5 | Кондиционер |
| 32 | 3 | АКПП, блок управления мотором |
| 33 | 7.5 | Реле ЭБУ |
| 34 | — | Диод электронного модуля (ЕЕС) |
| 35 | — | Диод муфты компрессора кондиционера |
| 36 | — | Диод вентилятора охлаждения |
| 37 | 15 | Датчик кислорода |
| 38 | — | — |
| 39 | — | |
| 40 | 7.5 | Датчик скорости, клапаны управления мотора |
| 41 | — | — |
| 42 | 10 | Блок управления двигателя (бензин) |
| 15 | Блок управления двигателя (дизель) |
Обратите внимание, что назначение элемента часто зависит от комплектации, например, есть отличия для бензиновых и дизельных моторов, а также от типа фар. В этом блоке располагаются фактически несколько реле:
| Реле | |
| R1 | Ближний свет |
| R2 | Обогреватель лобового стекла |
| R3 | Гудок |
| R4 | Топливный насос |
| R5 | Реле ЭБУ |
| R6 | Реле кондиционера |
| R7 | Реле вентилятора системы охлаждения |
| R8 | Реле вспомогательного подогрева (дизель) Реле фонарей заднего хода (ST220 с АКПП) |
| R9 | Реле вентилятора охлаждения Реле фонарей заднего хода (дизель с АКПП) |
| R10 | Реле стартера |
В салоне предохранители в «Форд-Мондео» третьего поколения находятся с левой стороны от руля. Необходимо снять защитную крышку, где представлены остальные предохранители:
| № | А | Назначение |
| 60 | 25 | Стеклоподъемники с левой стороны |
| 61 | 25 | Стеклоподъемники с правой стороны |
| 62 | 15 | Передние противотуманные фары, задний противотуманный свет |
| 63 | 7.5 | Габаритные огни с правой стороны |
| 64 | 7.5 | Габаритные огни с левой стороны |
| 65 | 7.5 | Кондиционер |
| 66 | 30 | Электропривод водительского сидения |
| 67 | 7.5 | Сигнализация |
| 68 | 15 | Прикуриватель |
| 69 | 7.5 | Аудио система, комбинация приборов |
| 70 | 15 | Задняя розетка (универсал) |
| 71 | 10 | Мультимедийная система для задних пассажиров |
| 72 | 20 | Радио |
| 73 | 20 | Люк |
| 74 | 20 | Разъем прицепа |
| 75 | 7.5 | Электропривод зеркал |
| 76 | 7.5 | Кондиционер |
| 77 | 7.5 | Система АБС, трэкшн контроль |
| 78 | 7.5 | Комбинация приборов, подушки безопасности |
| 79 | — | — |
| 80 | 7.5 | АКПП, лампы заднего хода |
| 81 | 7.5 | Датчик температуры, АКПП, датчик для подушки безопасности пассажира |
| 82 | 7.5 | Круиз контроль, кондиционер, подогрев системы омывателя стекол, вспомогательный подогреватель |
| 83 | 15 | Подогрев сидений |
| 84 | 20 | Дневные ходовые огни |
| 85 | 7.5 | Левый дальний свет |
| 86 | 7.5 | Правый дальний свет |
| 87 | — | — |
| 88 | 15 | Дневные ходовые огни |
| 89 | 7.5 | Подушки безопасности |
| 90 | 15 | Задний стеклоочиститель |
| 91 | 7.5 | Стеклоподъемники, люк, зеркало с затемнением |
| 92 | 20 | Разъем прицепа |
| 93 | 10 | Лампы стоп-сигнала, реле отопителя |
| 94 | 20 | Стеклоподъемники, люк, зеркало с затемнением |
| 95 | 7.5 | Ближний свет, реле омывателя фар |
| 96 | — | — |
| 97 | 7.5 | Освещение номерного знака, освещение бордачка, CTU |
| 98 | 7.5 | Электропривод зеркал, обогрев зеркал |
| 99 | 7.5 | Освещение салона |
| 10 | Освещение салона (фейслифтовые модели) | |
| 100 | 7.5 | Мультимедийная система (встроен в мультимедийный модуль) |
| 101 | 3 | CD-чейнджер (под пассажирским передним сиденьем) |
Таким образом, в машине установлено больше 100 предохранителей. В салоне также имеются и реле:
| Реле | |
| R1 | Реле дальнего света |
| R2 | Реле ближнего света |
| R3 | Реле стеклоочистителя |
| R4 | Реле зажигания |
| R5 | Реле обогрева заднего стекла |
| R6 | Реле отопителя |
| R7 | Реле вспомогательных цепей зажигания |
Блок предохранителей: причины поломки
Поводов неисправности защитных вставок много, но среди них можно выделить те, с которыми водители сталкиваются в абсолютном большинстве случаев:
- перегорание проводов;
- поломка элетриприбора, за который отвечает тот или иной предохранитель;
- неисправность аккумулятора;
- износ элементов электроцепи, начиная с проводкой и заканчивая реле;
- неправильный ремонт элементов электроцепи;
- замена предохранителей на элементы с большим номиналом.
Автовладельцам рекомендуется проводить осмотр электроцепей, реле и предохранителей не реже пары раз в год.
Рекомендации
Если вы занимаетесь ремонтом автомобиля сами, и не обращаетесь в станции технического обслуживания, будет проще распечатать схемы расположения предохранителей и хранить в машине. Эти детали быстро выходят из строя, и менять их придется не 1 раз.
В этом случае радует то, что детали не дорогие, и их замена не составляет труда. Для тех, кто думает наперед, проще сразу закупить комплекты определенных предохранителей и хранить их до определенного случая. С ними ничего не случится и в случае поломки, не нужно будет искать деталь срочным образом. У вас все будет на руках.
Стоит правильно подбирать предохранители и пользоваться формулой для расчета силы тока. Если пусть в цепь наибольшую силу тока, которая не подходит для соединения, может запросто сгореть проводка, и проблем будет гораздо больше.
Форд Мондео можно нередко встретить на дорогах нашей страны. Как и любой другой автомобиль, данная модель иногда выходит из строя. Если дело касается электрооборудования, то, скорее всего, причина проблемы перегоревший предохранитель, реле или вышедшей из строя весь блок предохранителей. К счастью многих автовладельцев, отремонтировать этот узел автомобиля не столь сложно и под силу любому человеку, который обладает хотя бы базовыми навыками авторемонта. В полной мере понять суть ремонта блока предохранителей в Форд Мондео поможет представленный ниже материал.
Замена предохранителя прикуривателя
Чтобы поменять нужно узнать его местоположение и приготовить отвертку, надобности пинцет и элемент на замену. Новая вставка должна быть не мощнее 20 Ампер. Находится этот предохранитель в салоне.
Бензонасос форд мондео 4 предохранитель где находится
Ford Mondeo 4 го поколения выпускался в 2007, 2008, 2009, 2010, 2011, 2012 и 2013 годах как с бензиновыми, так и дизельными двигателями. За это время автомобиль прошел один рестайлинг. В нашей публикации вы сможете найти описание блоков предохранителей и реле Форд Мондео 4, места их расположения, схемы и фото — примеры исполнения. Отметим предохранитель отвечающий за прикуриватель.
В данной модели предусмотрены 3 основных блока с предохранителями и реле: под капотом, в салоне и багажном отделении.
Блок в салоне
Он находится под бардачком. Для доступа нужно просто повернуть винт крепления и блок опустится вниз.
Вариант 1
Схема
p, blockquote 7,0,0,0,0 —>
| F1 | 5А Датчик дождя |
| F2 | 10А Питание системы SRS (подушки безопасности) |
| F3 | 5А Датчик отклонения от курса (ESP), электрический стояночный тормоз |
| F4 | 7,5А Электропитание, педаль акселератора, электронный предохранитель |
| F5 | 15А Задний стеклоочиститель |
| F6 | 15А Аудиосистема (включая голосовое управление) |
| F7 | 7,5А Модуль рулевого колеса |
| F8 | 5А Приборная панель |
| F9 | 15А Дальний свет фар |
| F10 | 20А Электропривод вентиляционного люка |
| F11 | 7,5А Фонари заднего хода |
| F12 | Резерв |
| F13 | 15А Лампа передней противотуманной фары |
| F14 | 15А Омыватель ветрового стекла |
| F15 | 10А Система адаптивного круиз-контроля (АСС) |
| F16 | Резерв |
| F17 | 10А Плафоны освещения салона |
| F18 | 5А Иммобилайзера двигателя |
| F19 | 15А Прикуриватель |
| F20 | Резерв |
| F21 | 5А Устройство приема радиосигналов, датчик дождя |
| F22 | 20А Топливный насос |
| F23 | Резерв |
| F24 | 5А Выключатель зажигания (стартера и приборов) |
| F25 | 10А Лючок топливоналивной горловины |
| F26 | 5А Автономная звуковая система (система охранной сигнализации), OBD II (бортовая компьютерная диагностика) |
| F27 | 5А Узел рулевой колонки, блок управления климат-контролем |
| F28 | 5А Выключатель стоп-сигналов |
В данном исполнении за прикуриватель отвечает предохранитель номер 19 на 15А.
Вариант 2
Обозначение
p, blockquote 13,1,0,0,0 —>
| F1 | 7,5А Модуль рулевого колеса |
| F2 | 5А Приборная панель |
| F3 | 10А Плафоны освещения салона |
| F4 | 5А Иммобилайзера двигателя |
| F5 | 7,5А Адаптивная система круиз-контроля (ACC) |
| F6 | 5А Датчик дождя |
| F7 | 20А Прикуриватель |
| F8 | 10А Питание цепи разблокировки лючка заливной горловины топливного бака |
| F9 | 15А Омыватели лобового стекла — задние |
| F10 | 15А Омыватели лобового стекла — передние |
| F11 | 10А Питание цепи разблокировки двери багажного отделения |
| F12 | 10А Питание цепи запирания лючка заливной горловины топливного бака |
| F13 | 7,5/20А Топливный насос |
| F14 | 5А Дистанционный частотный приемки, Датчик движения в салоне |
| F15 | 5А Выключатель зажигания (стартера и приборов) |
| F16 | 5А Автономная звуковая система (система охранной сигнализации), OBDII (бортовая компьютерная диагностика) |
| F17 | 5А Датчик вибрации рулевого колеса |
| F18 | 10А Питание системы SRS (подушки безопасности) |
| F19 | 7,5А ABS, датчик рысканья (ESP), электрический стояночный тормоз (EPB), питание педали акселератора |
| F20 | 7,5А Электронное устройство питания, электронный предохранитель, само затемняющееся зеркало, система предупреждения об уходе с полосы |
| F21 | 15А Электропитание радиоприемника |
| F22 | 5А Выключатель стоп — сигналов |
| F23 | 20А Потолочный люк |
| F24 | 5А Электропитание модуля управления микроклиматом и модуля системы управления рулевой колонкой |
За прикуриватель отвечает предохранитель номер 20 на 7А.
Блок под капотом
Он находится с левой стороны рядом с фарой, под защитной крышкой.
Состоит из 2 частей: отдел предохранителей и отдел плавких вставок высокой мощности.
Фото — схема
p, blockquote 21,0,0,0,0 —>
| F1 | 10/15А Модуль управления коробкой передач |
| F2 | Дизельные двигатели: Управление свечой накаливания, мониторинг работы свечей предпускового подогрева испарителя (рестайлинг: 2.0L Duratorq-TDCi Stage V и 2.2L Duratorq-TDCi Stage V) |
| F3 | 70А 2.3L Duratec-HE и 2.2L Duratorq-TDCi с АКПП: Вентилятор охлаждения двигателя — сдвоенный вентилятор 80А Электрогидравлический усилитель рулевого управления (EHPAS) (1.6L Duratec-16V Ti-VCT Stage V, 1.6L EcoBoost SCTi, 2.0L EcoBoost SCTi, 1.6L Duratorq-TDCi Stage V и 2.0L Duratorq-TDCi Stage V, 2,0л Duratorq-TDCi) |
| F4 | 60А Свечи подогрева |
| F5 | 60/70А Вентилятор охлаждения двигателя (сдвоенный вентилятор) |
| F6 | 7,5/10А Датчики HEGO 1 (управление двигателем), изменяемые фазы газораспределения (управление двигателем), датчик CMS, кислородный датчик 20А Свеча предпускового подогрева испарителя |
| F7 | 5А Соленоиды реле |
| F8 | 10/15/20А Модуль управления силовым агрегатом, дозатор топлива, датчик MAF, клапан управления давлением в топливном коллекторе (система управления двигателем) |
| F9 | 10А Датчик MAF, топливные форсунки, регулируемый впускной клапан, регулируемый выпускной клапан, катушки зажигания (система управления двигателем) 5А Испаритель топливного насоса 7,5А Датчик массового расхода воздуха, перепускной клапан EGR, испаритель топливного насоса управление двигателем) либо для 1,6L Клапан удаления воздуха из системы охлаждения, датчик TMAF, активные жалюзи радиатора, перепускной клапан, катушка реле, вспомогательный водяной насос |
| F10 | 10А Блок управления двигателем 7,5А Вспомогательный водяной насос |
| F11 | 5/7,5/10А Клапан PCV, клапан VCV, датчик наличия воды в топливе, клапан продувки, вихревой клапан, регулируемый впускной клапан, клапан EGR, клапан регулировки подачи масла IVVT (система управления двигателем) Датчик T.MAF, регулируемый клапан выдержки времени выпуска, активные жалюзи радиатора, клапан продувки канистры, клапан регулировки турбокомпрессора, регулятор давления наддува (система управления двигателем) 1.6L EcoBoost SCTi: Клапан регулировки давления турбокомпрессора, клапан установки регулируемого газораспределения впускных клапанов, клапан установки регулируемого газораспределения выпускных клапанов, продувочный клапан угольного фильтра системы контроля за парами топлива, электрический перепускной клапан |
| F12 | 10/15А Катушка в сборе со свечой зажигания; клапан продувки канистры, датчик давления системы рулевого привода с усилителем (система управления двигателем) 5А Катушка реле |
| F13 | 15А Кондиционирование воздуха |
| F14 | 10/15А 2.0LОтопитель дизельного фильтра, Датчик HEGO |
| F15 | 40А Реле стартера |
| F16 | 80А Дополнительный дизельный подогреватель (PTC) |
| F17 | 60А Питание А центрального блока плавких предохранителей |
| F18 | 60А Питание В центрального блока плавких предохранителей |
| F19 | 60А Питание С центрального блока плавких предохранителей |
| F20 | 60А Питание D центрального блока плавких предохранителей |
| F21 | 30А VQM/без VQM: приборный щиток/ аудиоблок/ AC/FLR |
| F22 | 30А Модуль щеток стеклоочистителя |
| F23 | 25/30А Обогреватель заднего стекла |
| F24 | 30А Омыватели фар |
| F25 | 30А Клапаны ABS |
| F26 | 40А Насос ABS |
| F27 | 25А Вспомогательный подогреватель топлива |
| F28 | 40А Вентилятор обогревателя |
| F29 | Резерв |
| F30 | 5А Питание ABS 30 |
| F31 | 15А Звуковой сигнал |
| F32 | 5А Отопитель, работающий на топливе — дистанционное управление |
| F33 | 5А Блок управления приборами освещения, соленоиды подкапотного блока плавких предохранителей |
| F34 | 40А Обогрев ветрового стекла, левая сторона |
| F35 | 40А Обогрев ветрового стекла, правая сторона |
| F36 | 15А Питание заднего стеклоочистителя 15 5А АБС |
| F37 | 7,5/10А Обогрев передних форсунок омывателя/FLR + FSM KL15 |
| F38 | 10А Питание PCM/TCM/EHPAS 15 5А Адаптивная система круиз-контроля (ACC) |
| F39 | 15А Система адаптивного освещения (AFS) |
| F40 | 5А Коррекция наклона света фар/модуль AFS |
| F41 | 20А Панель приборов |
| F42 | 5А Щиток IP 10А Модуль управления двигателем, модуль управления коробкой передач, электрогидравлический усилитель рулевого управления (EHPAS), 15, питание |
| F43 | 15А Аудиоблок /модуль закрывания тормозных клапанов (BVC) / модуль цифрового аудиовещания (DAB) 5А Положение фар, система адаптивного головного освещения (AFS) |
| F44 | 5А Автоматическая система AC/ручная система AC |
| F45 | 5А FLR (запуск/остановка) 15А Очиститель заднего стекла |
Блок в багажнике
Он расположен слева за за боковой обшивкой. В зависимости от кузова автомобиля и его комплектации возможны различные варианты исполнения.
Седаны
Универсалы
Общая расшифровка элементов
p, blockquote 26,0,0,0,0 —>
| FA1 | Блок управления левой передней двери (стеклоподъемники, центральный замок, складывание зеркал, обогрев зеркал) |
| FA2 | Блок управления правой передней двери (стеклоподъемники, центральный замок, складывание зеркал, обогрев зеркал) |
| FA3 | Блок управления левой задней двери (стеклоподъемники) |
| FA4 | Блок управления правой задней двери (стеклоподъемники) |
| FA5 | Блокировка замков задних дверей без участия блоков управления дверьми |
| FA6 | Гнезда питания для подключения дополнительного оборудования |
| FA7 | Соленоиды реле |
| FA8 | Рестайлинг: Модуль бесключевой системы автомобиля Дорестайлинг: Замок рулевой колонки |
| FA9 | Катушки реле VQM (запуск/остановка) |
| FA10 | Электрическая регулировка положения сиденья водителя |
| FA11 | Аксессуары, модуль прицепа |
| FA12 | Электрическая регулировка положения сиденья водителя |
| FB1 | Модуль системы помощи при парковке |
| FB2 | Блок управления подвеской |
| FB3 | Обогрев сиденья водителя |
| FB4 | Обогрев сиденья переднего пассажира |
| FB5 | Обогрев заднего левого сиденья |
| FB6 | Резерв |
| FB7 | Обогрев заднего правого сиденья |
| FB8 | Система помощи при парковке, BLIS |
| FB9 | Электрическая регулировка положения сиденья переднего пассажира |
| FB10 | Противоугонная сигнализация |
| FB11 | Резерв |
| FB12 | Резерв |
| FC1 | Резерв |
| FC2 | Резерв |
| FC3 | Резерв |
| FC4 | Резерв |
| FC5 | 20A Автомобиль с системой запуска двигателя без ключа 7.5A CD-чейнджер, развлекательная система для задних пассажиров |
| FC6 | Резерв |
| FC7 | 5А Модуль функции запоминания положения сиденья |
| FC8 | 20А Дорестайлинг: Доступ без ключа, 7,5А Рестайлинг: Мультимедийная система для пассажиров на задних сиденьях/ CD-чейнджер |
| FC9 | 20А Усилитель аудиосистемы |
| FC10 | 10А Аудиосистема Sony |
| FC11 | Резерв |
| FC12 | Резерв |
Инструкция Форд Мондео 4
Нужно больше информации про ремонт и обслуживание Ford Mondeo 4 поколения? Изучите данную инструкцию: «скачать«. А если останутся вопросы, задавайте их в комментариях.
Эпопея с электропитанием бензонасоса
Если у вас рабочий бензонасос не работает на машине, при этом питание на разъеме бензонасоса есть, то скорее всего моя история поможет решить проблему.
Виновник находится в Изолента от температуры рассохлась и отвалилась
От высокой температуры в месте, где скрутка касалась войлока, войлок покоричнивел. Так можно и машину сжечь((.
Подгорел ковролин
виновник
Ford Mondeo 4 – предохранители и реле
Ford Mondeo 4 го поколения выпускался в 2007, 2008, 2009, 2010, 2011, 2012 и 2013 годах как с бензиновыми, так и дизельными двигателями. За это время автомобиль прошел один рестайлинг. В нашей публикации вы сможете найти описание блоков предохранителей и реле Форд Мондео 4, места их расположения, схемы и фото – примеры исполнения. Отметим предохранитель отвечающий за прикуриватель.
p, blockquote 1,0,0,0,0 —>
p, blockquote 2,0,0,0,0 —>
В данной модели предусмотрены 3 основных блока с предохранителями и реле: под капотом, в салоне и багажном отделении.
Блок в салоне
Он находится под бардачком. Для доступа нужно просто повернуть винт крепления и блок опустится вниз.
p, blockquote 4,0,0,0,0 —>
p, blockquote 5,0,0,0,0 —>
Вариант 1
Схема
p, blockquote 6,0,0,0,0 —>
Описание
p, blockquote 7,0,1,0,0 —>
| F1 | 5А Датчик дождя |
| F2 | 10А Питание системы SRS (подушки безопасности) |
| F3 | 5А Датчик отклонения от курса (ESP), электрический стояночный тормоз |
| F4 | 7,5А Электропитание, педаль акселератора, электронный предохранитель |
| F5 | 15А Задний стеклоочиститель |
| F6 | 15А Аудиосистема (включая голосовое управление) |
| F7 | 7,5А Модуль рулевого колеса |
| F8 | 5А Приборная панель |
| F9 | 15А Дальний свет фар |
| F10 | 20А Электропривод вентиляционного люка |
| F11 | 7,5А Фонари заднего хода |
| F12 | Резерв |
| F13 | 15А Лампа передней противотуманной фары |
| F14 | 15А Омыватель ветрового стекла |
| F15 | 10А Система адаптивного круиз-контроля (АСС) |
| F16 | Резерв |
| F17 | 10А Плафоны освещения салона |
| F18 | 5А Иммобилайзера двигателя |
| F19 | 15А Прикуриватель |
| F20 | Резерв |
| F21 | 5А Устройство приема радиосигналов, датчик дождя |
| F22 | 20А Топливный насос |
| F23 | Резерв |
| F24 | 5А Выключатель зажигания (стартера и приборов) |
| F25 | 10А Лючок топливоналивной горловины |
| F26 | 5А Автономная звуковая система (система охранной сигнализации), OBD II (бортовая компьютерная диагностика) |
| F27 | 5А Узел рулевой колонки, блок управления климат-контролем |
| F28 | 5А Выключатель стоп-сигналов |
В данном исполнении за прикуриватель отвечает предохранитель номер 19 на 15А.
Вариант 2
p, blockquote 9,0,0,0,0 —>
p, blockquote 10,0,0,0,0 —>
Схема
p, blockquote 11,0,0,0,0 —>
p, blockquote 12,0,0,0,0 —>
Обозначение
p, blockquote 13,0,0,0,0 —>
| F1 | 7,5А Модуль рулевого колеса |
| F2 | 5А Приборная панель |
| F3 | 10А Плафоны освещения салона |
| F4 | 5А Иммобилайзера двигателя |
| F5 | 7,5А Адаптивная система круиз-контроля (ACC) |
| F6 | 5А Датчик дождя |
| F7 | 20А Прикуриватель |
| F8 | 10А Питание цепи разблокировки лючка заливной горловины топливного бака |
| F9 | 15А Омыватели лобового стекла – задние |
| F10 | 15А Омыватели лобового стекла – передние |
| F11 | 10А Питание цепи разблокировки двери багажного отделения |
| F12 | 10А Питание цепи запирания лючка заливной горловины топливного бака |
| F13 | 7,5/20А Топливный насос |
| F14 | 5А Дистанционный частотный приемки, Датчик движения в салоне |
| F15 | 5А Выключатель зажигания (стартера и приборов) |
| F16 | 5А Автономная звуковая система (система охранной сигнализации), OBDII (бортовая компьютерная диагностика) |
| F17 | 5А Датчик вибрации рулевого колеса |
| F18 | 10А Питание системы SRS (подушки безопасности) |
| F19 | 7,5А ABS, датчик рысканья (ESP), электрический стояночный тормоз (EPB), питание педали акселератора |
| F20 | 7,5А Электронное устройство питания, электронный предохранитель, само затемняющееся зеркало, система предупреждения об уходе с полосы |
| F21 | 15А Электропитание радиоприемника |
| F22 | 5А Выключатель стоп – сигналов |
| F23 | 20А Потолочный люк |
| F24 | 5А Электропитание модуля управления микроклиматом и модуля системы управления рулевой колонкой |
За прикуриватель отвечает предохранитель номер 20 на 7А.
Блок под капотом
Он находится с левой стороны рядом с фарой, под защитной крышкой.
p, blockquote 15,1,0,0,0 —>
p, blockquote 16,0,0,0,0 —>
Состоит из 2 частей: отдел предохранителей и отдел плавких вставок высокой мощности.
p, blockquote 17,0,0,0,0 —>
Фото – схема
p, blockquote 18,0,0,0,0 —>
p, blockquote 19,0,0,0,0 —>
p, blockquote 20,0,0,0,0 —>
Назначение
p, blockquote 21,0,0,0,0 —>
| F1 | 10/15А Модуль управления коробкой передач |
| F2 | Дизельные двигатели: Управление свечой накаливания, мониторинг работы свечей предпускового подогрева испарителя (рестайлинг: 2.0L Duratorq-TDCi Stage V и 2.2L Duratorq-TDCi Stage V) |
| F3 | 70А 2.3L Duratec-HE и 2.2L Duratorq-TDCi с АКПП: Вентилятор охлаждения двигателя — сдвоенный вентилятор 80А Электрогидравлический усилитель рулевого управления (EHPAS) (1.6L Duratec-16V Ti-VCT Stage V, 1.6L EcoBoost SCTi, 2.0L EcoBoost SCTi, 1.6L Duratorq-TDCi Stage V и 2.0L Duratorq-TDCi Stage V, 2,0л Duratorq-TDCi) |
| F4 | 60А Свечи подогрева |
| F5 | 60/70А Вентилятор охлаждения двигателя (сдвоенный вентилятор) |
| F6 | 7,5/10А Датчики HEGO 1 (управление двигателем), изменяемые фазы газораспределения (управление двигателем), датчик CMS, кислородный датчик 20А Свеча предпускового подогрева испарителя |
| F7 | 5А Соленоиды реле |
| F8 | 10/15/20А Модуль управления силовым агрегатом, дозатор топлива, датчик MAF, клапан управления давлением в топливном коллекторе (система управления двигателем) |
| F9 | 10А Датчик MAF, топливные форсунки, регулируемый впускной клапан, регулируемый выпускной клапан, катушки зажигания (система управления двигателем) 5А Испаритель топливного насоса 7,5А Датчик массового расхода воздуха, перепускной клапан EGR, испаритель топливного насоса управление двигателем) либо для 1,6L Клапан удаления воздуха из системы охлаждения, датчик TMAF, активные жалюзи радиатора, перепускной клапан, катушка реле, вспомогательный водяной насос |
| F10 | 10А Блок управления двигателем 7,5А Вспомогательный водяной насос |
| F11 | 5/7,5/10А Клапан PCV, клапан VCV, датчик наличия воды в топливе, клапан продувки, вихревой клапан, регулируемый впускной клапан, клапан EGR, клапан регулировки подачи масла IVVT (система управления двигателем) Датчик T.MAF, регулируемый клапан выдержки времени выпуска, активные жалюзи радиатора, клапан продувки канистры, клапан регулировки турбокомпрессора, регулятор давления наддува (система управления двигателем) 1.6L EcoBoost SCTi: Клапан регулировки давления турбокомпрессора, клапан установки регулируемого газораспределения впускных клапанов, клапан установки регулируемого газораспределения выпускных клапанов, продувочный клапан угольного фильтра системы контроля за парами топлива, электрический перепускной клапан |
| F12 | 10/15А Катушка в сборе со свечой зажигания; клапан продувки канистры, датчик давления системы рулевого привода с усилителем (система управления двигателем) 5А Катушка реле |
| F13 | 15А Кондиционирование воздуха |
| F14 | 10/15А 2.0LОтопитель дизельного фильтра, Датчик HEGO |
| F15 | 40А Реле стартера |
| F16 | 80А Дополнительный дизельный подогреватель (PTC) |
| F17 | 60А Питание А центрального блока плавких предохранителей |
| F18 | 60А Питание В центрального блока плавких предохранителей |
| F19 | 60А Питание С центрального блока плавких предохранителей |
| F20 | 60А Питание D центрального блока плавких предохранителей |
| F21 | 30А VQM/без VQM: приборный щиток/ аудиоблок/ AC/FLR |
| F22 | 30А Модуль щеток стеклоочистителя |
| F23 | 25/30А Обогреватель заднего стекла |
| F24 | 30А Омыватели фар |
| F25 | 30А Клапаны ABS |
| F26 | 40А Насос ABS |
| F27 | 25А Вспомогательный подогреватель топлива |
| F28 | 40А Вентилятор обогревателя |
| F29 | Резерв |
| F30 | 5А Питание ABS 30 |
| F31 | 15А Звуковой сигнал |
| F32 | 5А Отопитель, работающий на топливе – дистанционное управление |
| F33 | 5А Блок управления приборами освещения, соленоиды подкапотного блока плавких предохранителей |
| F34 | 40А Обогрев ветрового стекла, левая сторона |
| F35 | 40А Обогрев ветрового стекла, правая сторона |
| F36 | 15А Питание заднего стеклоочистителя 15 5А АБС |
| F37 | 7,5/10А Обогрев передних форсунок омывателя/FLR + FSM KL15 |
| F38 | 10А Питание PCM/TCM/EHPAS 15 5А Адаптивная система круиз-контроля (ACC) |
| F39 | 15А Система адаптивного освещения (AFS) |
| F40 | 5А Коррекция наклона света фар/модуль AFS |
| F41 | 20А Панель приборов |
| F42 | 5А Щиток IP 10А Модуль управления двигателем, модуль управления коробкой передач, электрогидравлический усилитель рулевого управления (EHPAS), 15, питание |
| F43 | 15А Аудиоблок /модуль закрывания тормозных клапанов (BVC) / модуль цифрового аудиовещания (DAB) 5А Положение фар, система адаптивного головного освещения (AFS) |
| F44 | 5А Автоматическая система AC/ручная система AC |
| F45 | 5А FLR (запуск/остановка) 15А Очиститель заднего стекла |
Блок в багажнике
Он расположен слева за за боковой обшивкой. В зависимости от кузова автомобиля и его комплектации возможны различные варианты исполнения.
p, blockquote 22,0,0,1,0 —>
p, blockquote 23,0,0,0,0 —>
Седаны
Схема
p, blockquote 24,0,0,0,0 —>
p, blockquote 25,0,0,0,0 —>
Универсалы
Общая расшифровка элементов
p, blockquote 26,0,0,0,0 —>
| FA1 | Блок управления левой передней двери (стеклоподъемники, центральный замок, складывание зеркал, обогрев зеркал) |
| FA2 | Блок управления правой передней двери (стеклоподъемники, центральный замок, складывание зеркал, обогрев зеркал) |
| FA3 | Блок управления левой задней двери (стеклоподъемники) |
| FA4 | Блок управления правой задней двери (стеклоподъемники) |
| FA5 | Блокировка замков задних дверей без участия блоков управления дверьми |
| FA6 | Гнезда питания для подключения дополнительного оборудования |
| FA7 | Соленоиды реле |
| FA8 | Рестайлинг: Модуль бесключевой системы автомобиля Дорестайлинг: Замок рулевой колонки |
| FA9 | Катушки реле VQM (запуск/остановка) |
| FA10 | Электрическая регулировка положения сиденья водителя |
| FA11 | Аксессуары, модуль прицепа |
| FA12 | Электрическая регулировка положения сиденья водителя |
| FB1 | Модуль системы помощи при парковке |
| FB2 | Блок управления подвеской |
| FB3 | Обогрев сиденья водителя |
| FB4 | Обогрев сиденья переднего пассажира |
| FB5 | Обогрев заднего левого сиденья |
| FB6 | Резерв |
| FB7 | Обогрев заднего правого сиденья |
| FB8 | Система помощи при парковке, BLIS |
| FB9 | Электрическая регулировка положения сиденья переднего пассажира |
| FB10 | Противоугонная сигнализация |
| FB11 | Резерв |
| FB12 | Резерв |
| FC1 | Резерв |
| FC2 | Резерв |
| FC3 | Резерв |
| FC4 | Резерв |
| FC5 | 20A Автомобиль с системой запуска двигателя без ключа 7.5A CD-чейнджер, развлекательная система для задних пассажиров |
| FC6 | Резерв |
| FC7 | 5А Модуль функции запоминания положения сиденья |
| FC8 | 20А Дорестайлинг: Доступ без ключа, 7,5А Рестайлинг: Мультимедийная система для пассажиров на задних сиденьях/ CD-чейнджер |
| FC9 | 20А Усилитель аудиосистемы |
| FC10 | 10А Аудиосистема Sony |
| FC11 | Резерв |
| FC12 | Резерв |
Инструкция Форд Мондео 4
Нужно больше информации про ремонт и обслуживание Ford Mondeo 4 поколения? Изучите данную инструкцию: “скачать“.
p, blockquote 27,0,0,0,0 —>
У нас на канале мы так же разместили видео по данной статье – смотрите и подписывайтесь.













